欢迎访问无锡永邦科技有限公司企业网站
主页导航 | 加入收藏 | 设为主页
 
产品栏目 Products info
>船用门
>船用窗
>船用盖
>船用雨刮
>船用梯、杆
>舱室设备
>通风附件
>锚泊设备
>系泊设备
>救生设备
>消防设备
>起重设备
>直升机起障设备
>其它
联系我们 Contact us
联络方式

地址:无锡市北塘区人民西路92号
电话:0510-82390609
传真:0510-82390609
联系人:陶红
手机: 13961800574
邮箱:1160742167@qq.com
网站:www.wuxiyongbang.com

产品展示 product
当前位置:主页 > 产品展示
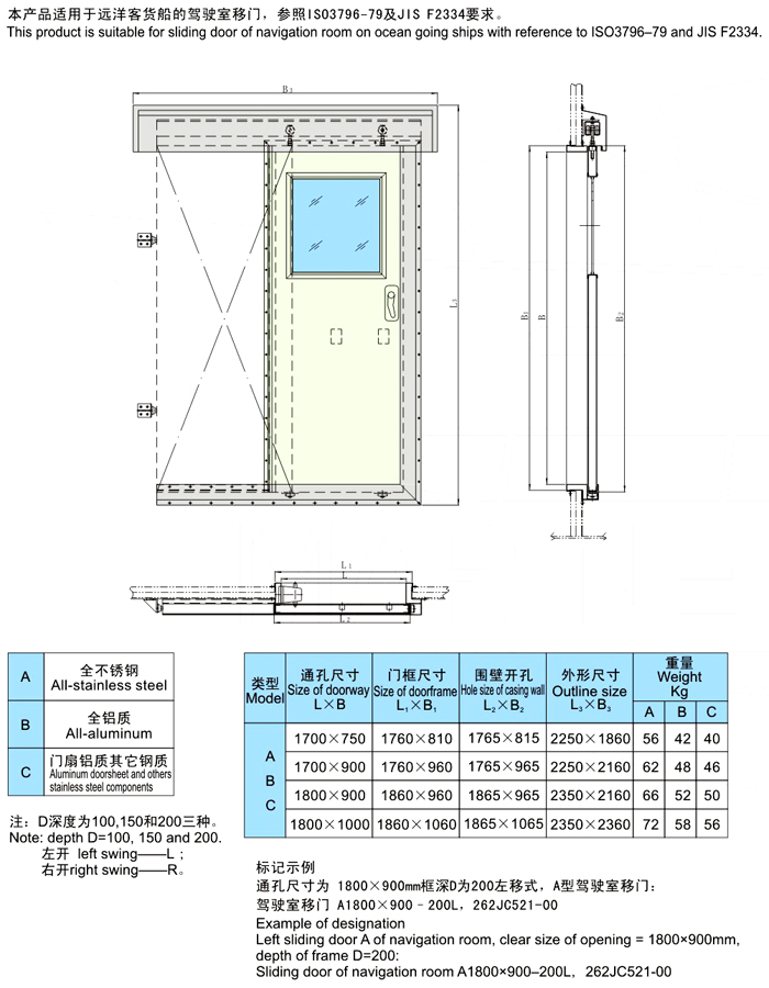
不锈钢、铝台金驾驶室移门

上一页:不锈钢、铝台金舱室移门
下一页:铝质移门(单、双)
    
 
Copyright © 无锡永邦科技有限公司 All reserved.
友情链接: 蜂窝纸板 空心活塞杆 动力母线 工程油缸 机器人搬运 平板硫化机 薄膜蒸发器 导热油炉 风力发电 饲料机械 内圆磨床 螺杆冷水机 转轮除湿机 不锈钢表冷器 锅炉 不锈钢反应釜 液压缸 无锡谷歌推广 保护膜 卧螺离心机 披萨加盟 机器人码垛机 喷雾干燥机 气浮机 化工设备厂家 干冰 失效分析检测 冷弯型钢 无锡网络推广 食品添加剂包装机 不饱和树脂设备